+22

Sallandsestraat 8 7741 HP Coevorden € 324.500,- v.o.n.

  • Appartement
  • 3 kamers
  • 2 slaapkamers
  • 1 badkamer
  • Bouwjaar 2023
  • 88 m² gebruiksoppervlakte
  • Gestoffeerd
  • A+++ Energielabel A+++

Beschrijving

NIEUWBOUW | INSTAPKLAAR | GASLOOS | ENERGIELABEL A+++

Thuis nieuwbouwmakelaars heeft nog maar één fantastische nieuwbouw woning in het hartje van Coevorden beschikbaar!
Voor iedereen die op zoek is naar een gezellig, modern én duurzaam huis is dit een leuke en speelse beneden/bovenwoning aan de Sallandsestraat.

Bovendien je kans om in een nieuwbouwwoning te trekken waarvan de bouw al af is: wel de lusten van alles nieuw, niet de lasten van het lange wachten!

Het appartement is volledig instapklaar en voorzien van een mooie vloer en nette stoffering. Je hoeft dus alleen je meubels mee te nemen en je kunt er zo intrekken. Geen gedoe met klussen of extra kosten; alles is al voor je geregeld zodat je direct kunt genieten van je nieuwe thuis.

Ligging: centraal en gezellig
Het appartement heeft een ideale ligging in het hartje van Coevorden. Je bevindt je letterlijk op loopafstand van alle voorzieningen die het levendige centrum te bieden heeft. Geniet van de gezellige terrasjes, winkels en restaurants.

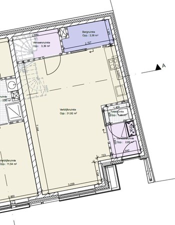
Indeling:
De benedenverdieping met het hoge plafond omvat een royale woonkamer en een moderne keuken. Op de 1e verdieping vind je twee slaapkamers en een compleet ingerichte badkamer.

Duurzaam wonen met vloerverwarming en zonnepanelen:
Dit appartement kenmerkt zich door zijn duurzaamheid. De vloerverwarming zorgt voor warme voeten in de koude wintermaanden en is bovendien energiezuinig. Daarnaast beschikt het appartement over een warmtepomp en zonnepanelen, waardoor je niet alleen bijdraagt aan een beter milieu, maar ook bespaart op je energierekening.

Bekijk vooral de foto’s van dit leuke huis! Is dit wat je zoekt? Bel of mail ons dan voor een bezichtiging!

Kaart

Kenmerken

Overdracht

Referentienummer
01687
Koopsom
€ 324.500,- v.o.n.
Inrichting
Ja
Inrichting
Gestoffeerd
Aanvaarding
In overleg
Aangeboden sinds
Donderdag 6 februari 2025
Laatste wijziging
Donderdag 16 april 2026

Bouw

Type object
Appartement, beneden/boven woning
Woonlaag
1e woonlaag
Soort bouw
Nieuwbouw
Bouwperiode
2023
Isolatievormen
Volledig geïsoleerd

Oppervlaktes en inhoud

Woonoppervlakte
88 m²
Inhoud
310 m³

Indeling

Aantal bouwlagen
2
Aantal kamers
3 (waarvan 2 slaapkamers)
Aantal badkamers
1 (en 1 apart toilet)

Locatie

Ligging
In centrum

Energieverbruik

Energielabel
A+++

Uitrusting

Warm water
Elektrische boiler
Verwarmingssysteem
Warmtepomp
Badkamervoorzieningen
Douche
Toilet
Wastafel
Heeft een balkon
Ja
Heeft zonnepanelen
Ja

Kadastrale gegevens

Kadastrale aanduiding
Coevorden D 5693
Perceeloppervlakte
369 m²
Omvang
Appartementsrecht of complex
Eigendomsituatie
Eigen grond
Indexnummer
4

Media

Video

Plattegronden

Brochure(s) en overige bijlagen

Sallandsestraat 8, 7741 HP COEVORDEN (1) Download