Verkocht:Coronastraat 10, 9742 EG Groningen - Foto
Verkocht
+51

Coronastraat 10 9742 EG Groningen

  • Woonhuis
  • 3 kamers
  • 2 slaapkamers
  • 1 badkamers
  • Bouwjaar 1967
  • 163 m² perceeloppervlakte
  • 147 m² gebruiksoppervlakte
  • B Energielabel B
Unieke, verrassende én ruime hoekwoning met garage

Beschrijving

RUIM & LICHT | UITBOUW | ZONNIG DAKTERRAS | GARAGEBOX

Aan de Coronastraat 10 staat deze verrassende én ruime hoekwoning. Dankzij de royale uitbouw (aan zij- en achtergevel) met veel glas, de open keuken, de lichte woonkamer en het zonnige dakterras ademt dit huis ruimte en licht. Met een woonoppervlak van ca. 147 m², twee ruime slaapkamers, een moderne badkamer en een zonnige achtertuin op het zuidwesten is dit een ideale gezinswoning. Extra pluspunt: de garagebox direct achter het huis met elektra.

Binnen tref je een heerlijke living van maar liefst ca. 80 m² waar wonen, koken en genieten samenkomen. De serre met vloerverwarming en elektrische zonwering maakt dit een perfecte plek om elk seizoen van het licht te genieten. Op de eerste verdieping is een slaapkamer te vinden van bijna 24 m² groot. Deze is eenvoudig op te splitsen in 2 kamers. Op de tweede verdieping wacht nóg een fijne slaap-/werkkamer met toegang tot een zonnig dakterras op het zuidwesten.

En dat is nog niet alles: het huis beschikt over 6 zonnepanelen, vloerverwarming in badkamer en serre, een pelletkachel, en is grotendeels voorzien van dubbele beglazing. Dat betekent comfort én lagere energielasten (energielabel B).

Wat maakt dit huis zo aantrekkelijk?
• Royaal woonoppervlak van 147 m²
• Riante woonkamer van ca. 80 m² met glazen uitbouw
• Zonnige achtertuin en dakterras, beide op het zuidwesten
• Garagebox met elektra direct achter de woning
• Twee grote slaapkamers, eenvoudig op te splitsen in drie of zelfs vier kleinere slaapkamers
• 6 zonnepanelen (2019), pelletkachel (2024) en energielabel B
• Gelegen in een rustige woonwijk, met voorzieningen, Zernike en binnenstad vlakbij

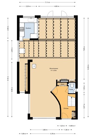
Indeling

Begane grond
Entree/hal met toilet, garderobekast en meterkast. Royale woonkamer met serre-uitbouw, vloerverwarming, veel glas en toegang tot de tuin. In de aanbouw aan de zijkant een smalle kastenwand/bijkeuken, met glas-in-lood raam en solar tubes. Halfopen keuken met inbouwapparatuur (4-pits gasfornuis, oven, magnetron, afzuigkap en vaatwasser). Pelletkachel en sfeerhaardje.

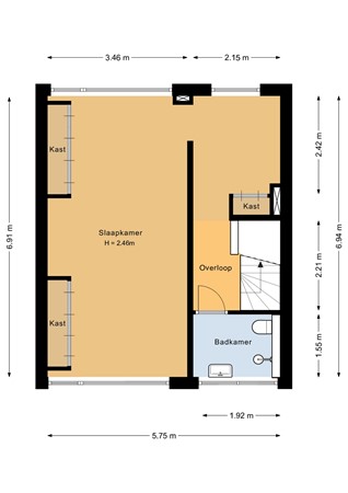
Eerste verdieping
Overloop met kastruimte. Grote slaapkamer van ca. 24 m² (mogelijk op te delen in twee of drie slaapkamers). Badkamer met vloerverwarming, inloopdouche, wastafelmeubel en tweede toilet.

Tweede verdieping
Overloop met wasruimte, CV-opstelling en bergruimte. Tweede slaapkamer van ca. 17 m² met dakkapel en toegang tot het zonnige dakterras op het zuidwesten.

Buiten
Achtertuin van ca. 40 m², gunstig gelegen op het zuidwesten en bereikbaar via achterom. Garagebox van ca. 16 m² met elektra direct achter de woning.

Bijzonderheden
• Bouwjaar: 1967
• Woonoppervlak: ca. 147 m²
• Perceeloppervlak: 163 m²
• Garagebox: ca. 16 m²
• Zonnepanelen (6 stuks, 2019)
• Pelletkachel (2024)
• CV-ketel ATAG (2016)
• Energielabel B
• Aanvaarding: kan snel

Locatie
Wonen in Paddepoel-Noord betekent de ideale balans tussen rustig en comfortabel wonen én dichtbij alle voorzieningen van de stad. Op loopafstand vind je het Zernikecomplex, winkelcentrum Paddepoel, middelbare- en basisscholen en het Park Selwerd, en met de fiets ben je binnen 5 minuten in de bruisende binnenstad van Groningen. Ook de ringweg ligt om de hoek, waardoor je met de auto snel de stad uit bent.

Benieuwd?
Bekijk de foto’s en video voor een eerste indruk, maar ervaar vooral zelf de ruimte en het licht tijdens een bezichtiging. Wanneer mogen wij jou rondleiden in deze woning?

Kaart

Kenmerken

Overdracht

Referentienummer
01828
Vraagprijs
€ 415.000,- k.k.
Status
Verkocht
Aanvaarding
In overleg
Aangeboden sinds
Woensdag 3 september 2025
Laatste wijziging
Woensdag 29 oktober 2025

Bouw

Type object
Woonhuis, eengezinswoning, hoekwoning
Soort bouw
Bestaande bouw
Bouwperiode
1967
Dakbedekking
Dakpannen
Type dak
Zadeldak
Keurmerken
Energie prestatie advies

Oppervlaktes en inhoud

Perceeloppervlakte
163 m²
Woonoppervlakte
147 m²
Inhoud
535 m³
Oppervlakte externe bergruimte
16 m²
Oppervlakte gebouwgebonden buitenruimte
3 m²

Indeling

Aantal bouwlagen
3
Aantal kamers
3 (waarvan 2 slaapkamers)
Aantal badkamers
1 (en 1 apart toilet)

Locatie

Ligging
Beschutte ligging
In woonwijk

Tuin

Type
Achtertuin
Hoofdtuin
Ja
Oriëntering
Zuid-west
Heeft een achterom
Ja
Staat
Prachtig aangelegd

Energieverbruik

Energielabel
B

CV ketel

Warmtebron
Gas
Bouwjaar
2019
Combiketel
Ja
Eigendom
Eigendom

Uitrusting

Warm water
CV-ketel
Verwarmingssysteem
Centrale verwarming
Badkamervoorzieningen
Douche
Toilet
Wastafel
Parkeergelegenheid
Garagebox
Tuin aanwezig
Ja
Heeft een garage
Ja
Heeft zonnepanelen
Ja

Kadastrale gegevens

Kadastrale aanduiding
Groningen L 2072
Perceeloppervlakte
18 m²
Omvang
Geheel perceel
Eigendomsituatie
Eigen grond
Kadastrale aanduiding
Groningen L 2060
Perceeloppervlakte
145 m²
Omvang
Geheel perceel
Eigendomsituatie
Eigen grond