Verkocht:Pelikaanstraat 56, 9713 BX Groningen - Foto
Verkocht
+45

Pelikaanstraat 56 9713 BX Groningen

  • Woonhuis
  • 5 kamers
  • 4 slaapkamers
  • 1 badkamers
  • Bouwjaar 2018
  • 101 m² perceeloppervlakte
  • 121 m² gebruiksoppervlakte
  • A Energielabel A

Beschrijving

LICHT EN COMFORTABEL | 4 SLAAPKAMERS | ENERGIELABEL A | ZONNIGE TUIN OP HET ZUIDWESTEN

Ben je op zoek naar een moderne eengezinswoning met vier slaapkamers, een zonnige tuin én een eigen parkeerplaats? Dan is dit zo-goed-als-nieuwbouwhuis aan de Pelikaanstraat 56 absoluut een kijkje waard.

Het huis beschikt over energielabel A, 9 zonnepanelen, vloerverwarming op de begane grond en in de badkamer en heeft een zonnige tuin op het zuidwesten met achterom. Parkeren kan eenvoudig op je eigen plek in de ondergrondse parkeergarage.

De ligging is rustig en heel kindvriendelijk, want de Pelikaanstraat is autoluw. Vandaar alle stoeptekeningen! Er zijn scholen, winkels, vele speeltuintjes en het Pioenpark in de buurt. Op de Grote Markt sta je binnen enkele minuten fietsen.

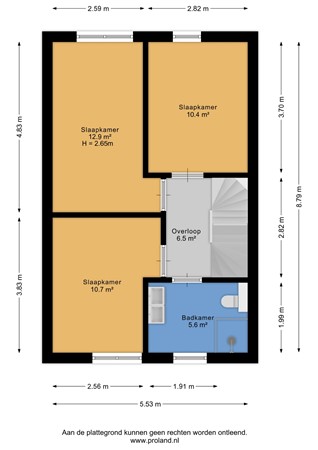
Indeling
Deze comfortabele tussenwoning heeft een fijne indeling verdeeld over drie woonlagen.

Op de begane grond vind je de lichte woonkamer met openslaande deuren naar de tuin en de open keuken met de vloer-tot-plafond hoge ramen aan de voorzijde.

De eerste verdieping telt drie slaapkamers en de praktische badkamer.

Op de tweede verdieping is de vierde slaapkamer en op de ruime overloop hebben de wasmachine, wasdroger en de cv-ketel hun plekje.

Wat maakt dit huis zo fijn?
• Moderne keuken met inbouwapparatuur
• Vier slaapkamers
• Vloerverwarming op de begane grond en in de badkamer
• Zonnige achtertuin op het zuidwesten
• Berging en achterom
• Groene en kindvriendelijke woonomgeving

Bijzonderheden:
• Energielabel A
• Bouwjaar: 2018
• 9 Zonnepanelen
• Gebruiksoppervlak wonen: ca. 121 m²
• Eigen parkeerplaats in parkeergarage, ook parkeervergunning mogelijk
• Kindvriendelijke buurt met veel voorzieningen
• Aanvaarding in overleg

Benieuwd?
Bekijk vooral de foto’s en de video van deze woning voor een eerste indruk. Wil je de sfeer echt ervaren? Bel of mail ons – we plannen graag een bezichtiging met je in!

Kaart

Kenmerken

Overdracht

Referentienummer
01825
Vraagprijs
€ 495.000,- k.k.
Servicekosten
€ 32,35
Status
Verkocht
Aanvaarding
In overleg
Aangeboden sinds
Donderdag 3 juli 2025
Laatste wijziging
Dinsdag 29 juli 2025

Bouw

Type object
Woonhuis, eengezinswoning, tussenwoning
Soort bouw
Bestaande bouw
Bouwperiode
2018
Dakbedekking
Dakpannen
Type dak
Zadeldak
Isolatievormen
Volledig geïsoleerd

Oppervlaktes en inhoud

Perceeloppervlakte
101 m²
Woonoppervlakte
121 m²
Inhoud
440 m³
Oppervlakte externe bergruimte
6 m²

Indeling

Aantal bouwlagen
3
Aantal kamers
5 (waarvan 4 slaapkamers)
Aantal badkamers
1 (en 1 apart toilet)

Locatie

Ligging
Aan rustige weg
Dichtbij openbaar vervoer
In woonwijk
Nabij school
Nabij snelweg

Tuin

Type
Achtertuin
Hoofdtuin
Ja
Oriëntering
Zuid-west
Heeft een achterom
Ja
Staat
Normaal

Energieverbruik

Energielabel
A

CV ketel

CV ketel
Nefit Proline
Warmtebron
Gas
Bouwjaar
2018
Combiketel
Ja
Eigendom
Eigendom

Uitrusting

Aantal parkeerplaatsen
1
Aantal overdekte parkeerplaatsen
1
Warm water
CV-ketel
Verwarmingssysteem
Centrale verwarming
Vloerverwarming (gedeeltelijk)
Ventilatie methode
Mechanische ventilatie
Badkamervoorzieningen
Douche
Toilet
Wastafel
Wastafelmeubel
Parkeergelegenheid
Parkeerkelder
Tuin aanwezig
Ja
Heeft schuur/berging
Ja
Heeft zonnepanelen
Ja
Heeft ventilatie
Ja

Kadastrale gegevens

Kadastrale aanduiding
Groningen A 13964
Perceeloppervlakte
101 m²
Omvang
Geheel perceel
Eigendomsituatie
Eigen grond
Kadastrale aanduiding
Groningen A 12853
Omvang
Appartementsrecht of complex
Eigendomsituatie
Eigen grond

Brochure(s) en overige bijlagen

Pelikaanstraat 56, 9713 BX GRONINGEN (1) Download