Onder bod:Tormentilstraat 106, 9731 DP Groningen - Foto
Onder bod
+46

Tormentilstraat 106 9731 DP Groningen € 475.000,- k.k.

  • Woonhuis
  • 5 kamers
  • 4 slaapkamers
  • 1 badkamers
  • Bouwjaar 1988
  • 623 m² perceeloppervlakte
  • 118 m² gebruiksoppervlakte
  • B Energielabel B

Beschrijving

GEZINSHUIS | GARAGE | 4 SLAAPKAMERS | ZONNIGE TUIN OP ZUID

Aan de Tormentilstraat 106 staat deze verrassend ruime twee-onder-één-kapwoning op een royale kavel. Met veel liefde bewoond, nu in verkoop door de eerste bewoner. Met een lichte woonkamer dankzij de grote ramen, een ruime woonkeuken, vier slaapkamers en een heerlijke beschutte tuin is dit een ideale gezinswoning. Extra pluspunt is de grote garage, de ruime oprit en de 7 zonnepanelen die zorgen voor energiezuinig wooncomfort (energielabel B).

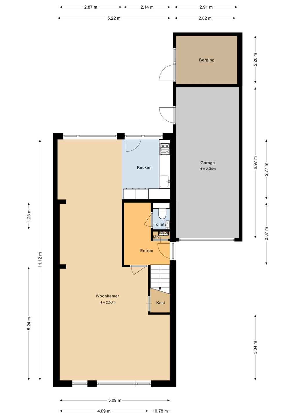
Indeling

Begane grond
Entree/hal met toilet en meterkast. Ruime woonkamer aan de voorzijde en een woonkeuken aan de achterzijde met veel lichtinval door de grote ramen. De keuken is natuurlijk voorzien van inbouwapparatuur en er is eenhandige trapkast.

Eerste verdieping
Overloop met drie slaapkamers (ca. 15 m², 9,5 m² en 6 m²) en de badkamer met ligbad en aparte douche.

Tweede verdieping
Overloop met bergruimte, wasmachine aansluiting en toegang tot de vierde slaapkamer van ca. 14,5 m².

Buiten
Nette voortuin en ruime oprit. Achter de woning ligt een beschutte tuin op het zuiden. Vanuit de tuin zijn de garage en de aparte berging bereikbaar en er is een achterom.

Bijzonderheden
• Woonoppervlak: ca. 118 m²
• Grote garage van ca. 20 m² met achterliggende berging
• Vier slaapkamers
• Badkamer met ligbad en aparte douche
• Energielabel B, 7 zonnepanelen
• Heerlijke achtertuin op het zuiden
• Rustige, kindvriendelijke woonomgeving nabij voorzieningen
• Aanvaarding in overleg, kan snel

Locatie
De woning ligt in de populaire wijk Ulgersmaborg: een groene en kindvriendelijke woonomgeving met supermarkt, basisschool, kinderopvang en speeltuin in de buurt. Binnen enkele minuten fietsen ben je in de bruisende binnenstad van Groningen, terwijl de ringweg en uitvalswegen ook snel bereikbaar zijn.

Benieuwd?
Bekijk de foto’s en video voor een eerste indruk, maar ervaar vooral zelf de ruimte en de rust tijdens een bezichtiging. Wanneer mogen wij jou rondleiden in deze woning?

Kaart

Kenmerken

Overdracht

Referentienummer
01824
Vraagprijs
€ 475.000,- k.k.
Status
Onder bod
Aanvaarding
In overleg
Aangeboden sinds
Woensdag 24 september 2025
Laatste wijziging
Woensdag 8 oktober 2025

Bouw

Type object
Woonhuis, eengezinswoning, geschakelde twee onder een kap woning
Soort bouw
Bestaande bouw
Bouwperiode
1988
Dakbedekking
Dakpannen
Type dak
Zadeldak
Isolatievormen
HR-glas

Oppervlaktes en inhoud

Perceeloppervlakte
623 m²
Woonoppervlakte
118 m²
Inhoud
479 m³
Oppervlakte overige inpandige ruimten
20 m²
Oppervlakte externe bergruimte
6 m²

Indeling

Aantal bouwlagen
3
Aantal kamers
5 (waarvan 4 slaapkamers)
Aantal badkamers
1 (en 1 apart toilet)

Tuin

Type
Achtertuin
Hoofdtuin
Ja
Oriëntering
Zuidoost
Heeft een achterom
Ja
Staat
Prachtig aangelegd
Tuin 2 - Type
Achtertuin
Tuin 2 - Staat
Prachtig aangelegd

Energieverbruik

Energielabel
B

CV ketel

CV ketel
Remeha Avanta
Warmtebron
Gas
Bouwjaar
2010
Combiketel
Ja
Eigendom
Eigendom

Uitrusting

Warm water
CV-ketel
Verwarmingssysteem
Centrale verwarming
Parkeergelegenheid
Aangebouwde stenen garage
Tuin aanwezig
Ja
Heeft een garage
Ja
Heeft schuur/berging
Ja
Heeft zonnepanelen
Ja

Kadastrale gegevens

Kadastrale aanduiding
Groningen AC 2696
Perceeloppervlakte
228 m²
Omvang
Geheel perceel
Eigendomsituatie
Eigen grond
Kadastrale aanduiding
Groningen AC 2722
Perceeloppervlakte
167 m²
Omvang
Geheel perceel

Brochure(s) en overige bijlagen

Tormentilstraat 106, 9731 DP GRONINGEN (1) Download