Onder bod:Vogelkersstraat 17, 9741 NK Groningen - Foto
Onder bod
+38

Vogelkersstraat 17 9741 NK Groningen € 275.000,- k.k.

  • Woonhuis
  • 4 kamers
  • 3 slaapkamers
  • 1 badkamer
  • Bouwjaar 1969
  • 456 m² perceeloppervlakte
  • 88 m² gebruiksoppervlakte
  • C Energielabel C

Beschrijving

Ben je op zoek naar een fijne tussenwoning met een prettige basis, lekker licht en een heerlijke diepe tuin? Dan móét je Vogelkersstraat 17 even bekijken. De woning is op onderdelen gedateerd en daarmee een ideale kans om alles naar je eigen smaak te moderniseren, van keuken en sanitair tot (vloer)afwerking. Met 88 m² woonoppervlak, drie slaapkamers, een vliering én vrij zicht aan de voor- en achterkant maak je hier echt een top(gezins)huis van.

Waarom je dit huis wilt zien!
• Te moderniseren huis: maak ‘m helemaal naar jullie eigen smaak
• Geen directe voor- en achterburen: daardoor lekker licht
• Diepere achtertuin op het noordwest, toch verrassend zonnig
• Schuur en achterom: praktisch met fietsen en tuinspullen
• Energielabel C en 6 zonnepanelen
• Extra kans: woonoppervlak uit te breiden door een vaste trap naar de zolder te plaatsen
• Minder dan 10 minuten fietsen naar de Grote Markt!

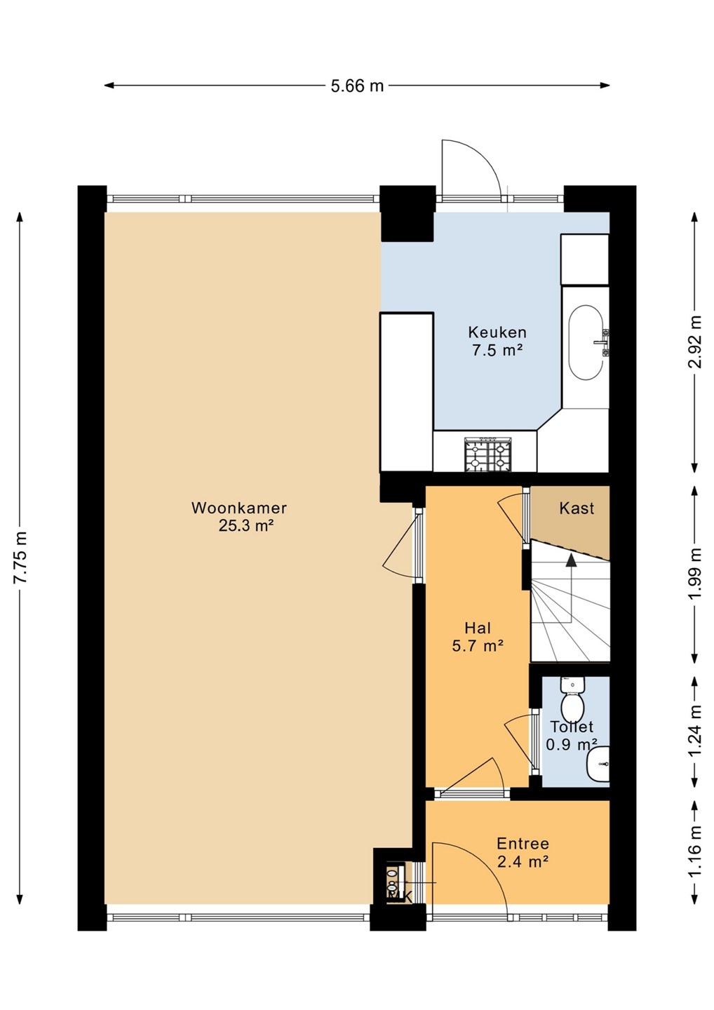
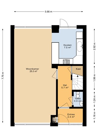
Indeling

Begane grond
Entree/hal met meterkast, toilet en een handige kelderkast. Doorloop naar de woonkamer en de half open keuken, met een deur naar de achtertuin.

Eerste verdieping
Overloop met drie slaapkamers en de badkamer met tweede toilet.

Tweede verdieping
Vliering met opstelplaats voor de CV-ketel. Een mooie kans, want plaats je hier een vaste trap dan haal je nog meer uit dit huis!

Buiten
Een voortuin en een diepere achtertuin. Achterin vind je een schuur en je hebt een achterom. Extra plus: meteen achter het huis is een speelveldje, ideaal voor de kinderen.

Goed om te weten
• Woonoppervlak: ca. 88 m²
• Perceel: ca. 456m2
• Bouwjaar: 1969
• Energielabel: C; met modernisering relatief eenvoudig te verbeteren
• Zonnepanelen: 6
• Mijnbouwschade (vaste vergoeding) geclaimd
• Aanvaarding: in overleg, kan snel

Wonen in de buurt
Prettig wonen met wekelijk àlles binnen handbereik. Grenzend aan park Selwerd en dicht bij het Noorderplantsoen, winkelcentrum Eikenlaan op korte afstand én Winkelcentrum Paddepoel vlakbij, basis- en middelbare scholen en Zernike campus in de buurt, sportvoorzieningen (inclusief zwembad!) en OV vind je in de directe omgeving en met de auto zit je zo op de ringweg.

Benieuwd?
Bekijk de foto’s en plattegronden voor een eerste indruk (en check ook de eigen website, via de QR code in de brochure!), maar vooral: kom het licht, de ruimte én de potentie zelf ervaren. We plannen graag een bezichtiging voor je in!

Kaart

Kenmerken

Overdracht

Referentienummer
01876
Vraagprijs
€ 275.000,- k.k.
Status
Onder bod
Aanvaarding
In overleg
Aangeboden sinds
Vrijdag 20 februari 2026
Laatste wijziging
Vrijdag 13 maart 2026

Bouw

Type object
Woonhuis, eengezinswoning, tussenwoning
Soort bouw
Bestaande bouw
Bouwperiode
1969
Dakbedekking
Dakpannen
Type dak
Zadeldak

Oppervlaktes en inhoud

Perceeloppervlakte
456 m²
Woonoppervlakte
88 m²
Inhoud
395 m³
Oppervlakte overige inpandige ruimten
14 m²
Oppervlakte externe bergruimte
8 m²

Indeling

Aantal bouwlagen
3
Aantal kamers
4 (waarvan 3 slaapkamers)
Aantal badkamers
1 (en 1 apart toilet)

Locatie

Ligging
Aan rustige weg
Dichtbij openbaar vervoer
In woonwijk
Nabij school
Nabij snelweg

Tuin

Type
Achtertuin
Hoofdtuin
Ja
Oriëntering
Noord west
Heeft een achterom
Ja

Energieverbruik

Energielabel
C

CV ketel

CV ketel
AWB 28T
Warmtebron
Gas
Bouwjaar
2009
Combiketel
Ja

Uitrusting

Warm water
CV-ketel
Verwarmingssysteem
Centrale verwarming
Tuin aanwezig
Ja
Heeft schuur/berging
Ja
Heeft zonnepanelen
Ja

Kadastrale gegevens

Kadastrale aanduiding
Groningen L 7307
Perceeloppervlakte
119 m²
Eigendomsituatie
Eigen grond
Kadastrale aanduiding
Groningen L 2327
Perceeloppervlakte
319 m²
Omvang
Geheel perceel
Kadastrale aanduiding
Groningen L 2308
Perceeloppervlakte
18 m²
Omvang
Geheel perceel
Eigendomsituatie
Eigen grond

Media

Video

Plattegronden

Brochure(s) en overige bijlagen

Vogelkersstraat 17, 9741 NK GRONINGEN (1) Download