Verkocht onder voorbehoud:Laan der Kruisheren 51, 9617 EB Harkstede - Foto
Verkocht onder voorbehoud
+64

Laan der Kruisheren 51 9617 EB Harkstede € 475.000,- k.k.

  • Woonhuis
  • 4 kamers
  • 3 slaapkamers
  • 1 badkamers
  • Bouwjaar 1995
  • 333 m² perceeloppervlakte
  • 127 m² gebruiksoppervlakte
  • B Energielabel B

Beschrijving

2-ONDER-1-KAPWONING | GARAGE | 3-4 SLAAPKAMERS | TUINHUIS MET OVERKAPPING | DAKTERRAS

Aan de Laan der Kruisheren, in de rustige en leuke wijk Borgmeren in Harkstede, staat deze fijne twee-onder-een-kapwoning op een ruime kavel. Het huis is met veel liefde en zorg bewoond door de huidige (eerste) eigenaren en is klaar voor een nieuw gezin dat hier net zo fijn gaat wonen. Met een lichte woonkamer, woonkeuken, drie (vierde eenvoudig te realiseren) slaapkamers, garage, bijkeuken, dakterras én een heerlijke beschutte tuin is dit een ideale plek voor wie ruimte, comfort en een prettige leefomgeving zoekt.

Indeling

Begane grond
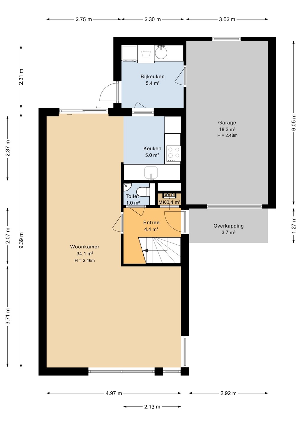
Je komt binnen via de hal met toilet en meterkast. De woonkamer bevindt zich aan de voorzijde en biedt een prettig uitzicht op de brede groene straat. Aan de achterzijde ligt de woonkeuken, uitgerust met alle benodigde inbouwapparatuur en voldoende plek voor een grote eettafel.
Aangrenzend vind je de bijkeuken: de ideale plek voor modderige laarsjes, sporttassen en de was. Vanuit de bijkeuken loop je door naar de garage en naar de achtertuin.

Eerste verdieping
Vanaf de overloop heb je toegang tot de slaapkamers, waarvan er twee zijn samengevoegd tot één zeer ruime kamer. Deze is eenvoudig weer te splitsen: de oorspronkelijke deur vanuit de overloop zit er namelijk nog gewoon. Verder op deze verdieping de complete badkamer met ligbad, aparte douche, wastafel en 2e toilet.

Tweede verdieping
Op de bovenste verdieping vind je een overloop met CV-ruimte, een nette slaapkamer, veel bergruimte én toegang tot het royale dakterras.

Buiten
De woning beschikt over een verzorgde voortuin en een ruime oprit met plek voor meerdere auto’s. De achtertuin is beschut, goed onderhouden en biedt dankzij het tuinhuisje met overkapping de perfecte plek om ’s zomers te barbecueën of avonden lang te genieten in de buitenlucht.

Pluspunten op een rij
• Ideale gezinswoning in geliefde wijk Borgmeren
• Ruime woonkeuken en lichte woonkamer
• 3 slaapkamers, 4 eenvoudig te realiseren
• Fijne bijkeuken, perfect voor een actief gezin
• Garage en oprit voor meerdere auto’s
• Beschutte achtertuin met tuinhuisje en overkapping
• Verrassend groot dakterras
• Rustig wonen in Harkstede, met natuur en voorzieningen dichtbij
• Goed openbaar vervoer en de stad Groningen op slechts 15 autominuten

Wonen in Borgmeren & Harkstede
Borgmeren staat bekend als een rustige, groene, waterrijke én kindvriendelijke wijk met brede straten, speeltuintjes en veel ruimte om buiten te spelen. In Harkstede vind je alles wat een dorp aantrekkelijk maakt, zoals een basisschool, sportclubs en een supermarkt. En je bent binnen 15 minuten in Groningen, ideaal toch?

Benieuwd?
Bekijk de foto’s en video voor een eerste indruk, maar ervaar vooral zelf de ruimte en het licht tijdens een bezichtiging. Wanneer mogen wij jou rondleiden in dit huis?

Kaart

Kenmerken

Overdracht

Referentienummer
01873
Vraagprijs
€ 475.000,- k.k.
Status
Verkocht onder voorbehoud
Aanvaarding
In overleg
Aangeboden sinds
Dinsdag 23 december 2025
Laatste wijziging
Vrijdag 20 februari 2026

Bouw

Type object
Woonhuis, eengezinswoning, twee onder een kap woning
Soort bouw
Bestaande bouw
Bouwperiode
1995
Dakbedekking
Bitumen
Dakpannen
Type dak
Samengesteld
Isolatievormen
Volledig geïsoleerd

Oppervlaktes en inhoud

Perceeloppervlakte
333 m²
Woonoppervlakte
127 m²
Inhoud
491 m³
Oppervlakte overige inpandige ruimten
18 m²
Oppervlakte gebouwgebonden buitenruimte
22 m²

Indeling

Aantal bouwlagen
3
Aantal kamers
4 (waarvan 3 slaapkamers)
Aantal badkamers
1 (en 1 apart toilet)

Locatie

Ligging
Aan rustige weg
Dichtbij openbaar vervoer
In woonwijk
Nabij school
Nabij snelweg

Tuin

Type
Achtertuin
Hoofdtuin
Ja
Oriëntering
Noord west
Staat
Prachtig aangelegd
Tuin 2 - Type
Voortuin
Tuin 2 - Oriëntering
Zuidoost
Tuin 2 - Staat
Prachtig aangelegd

Energieverbruik

Energielabel
B

CV ketel

CV ketel
Nefit Trendline HRC30
Warmtebron
Gas
Bouwjaar
2015
Combiketel
Ja
Eigendom
Eigendom

Uitrusting

Warm water
CV-ketel
Verwarmingssysteem
Centrale verwarming
Ventilatie methode
Mechanische ventilatie
Parkeergelegenheid
Aangebouwde stenen garage
Tuin aanwezig
Ja
Heeft een garage
Ja
Heeft schuur/berging
Ja
Heeft ventilatie
Ja

Kadastrale gegevens

Kadastrale aanduiding
Slochteren U 1976
Perceeloppervlakte
333 m²
Omvang
Geheel perceel
Eigendomsituatie
Eigen grond

Brochure(s) en overige bijlagen

Laan der Kruisheren 51, 9617 EB HARKSTEDE (1) Download