Verkocht onder voorbehoud:Van Limburg Stirumlaan 51, 9602 GP Hoogezand - Foto
Verkocht onder voorbehoud
+45

Van Limburg Stirumlaan 51 9602 GP Hoogezand € 225.000,- k.k.

  • Woonhuis
  • 5 kamers
  • 4 slaapkamers
  • 1 badkamers
  • Bouwjaar 1970
  • 144 m² perceeloppervlakte
  • 102 m² gebruiksoppervlakte
  • C Energielabel C
Maak ’m van jullie: te moderniseren gezinswoning, licht en met heerlijke tuin

Beschrijving

RUIM & LICHT | 4 SLAAPKAMERS | ACHTERTUIN MET ACHTEROM | OPTIONELE GARAGEBOX

Aan de Van Limburg Stirumlaan 51 woon je comfortabel en praktisch. Deze fijne eengezinswoning biedt ca. 102 m² woonoppervlak, vier slaapkamers verdeeld over drie verdiepingen en een heerlijke achtertuin met achterom. De woning is op onderdelen gedateerd en daarmee een ideale kans om alles naar je eigen smaak te moderniseren, van keuken en sanitair tot (vloer)afwerking. Dankzij de doorzonwoonkamer is het beneden heerlijk licht. Boven is er volop ruimte voor slapen, werken en spelen.

Waarom je dit huis wilt zien!
• Te moderniseren woning: maak ‘m helemaal naar jullie eigen smaak
• Vier slaapkamers, waaronder een volwaardige zolderkamer met dakkapel via vaste trap
• Lichte doorzon-woonkamer met plek voor een royale eettafel
• Onderhoudsvriendelijke achtertuin mét achterom
• Garagebox om de hoek optioneel bij te kopen (separaat, niet inbegrepen in de vraagprijs)
• Groene straat, grenzend aan het Gorechtpark, met winkels, scholen, OV en uitvalswegen dichtbij
• Op maar een kwartiertje fietsen van het Zuidlaardermeer!

Indeling

Begane grond
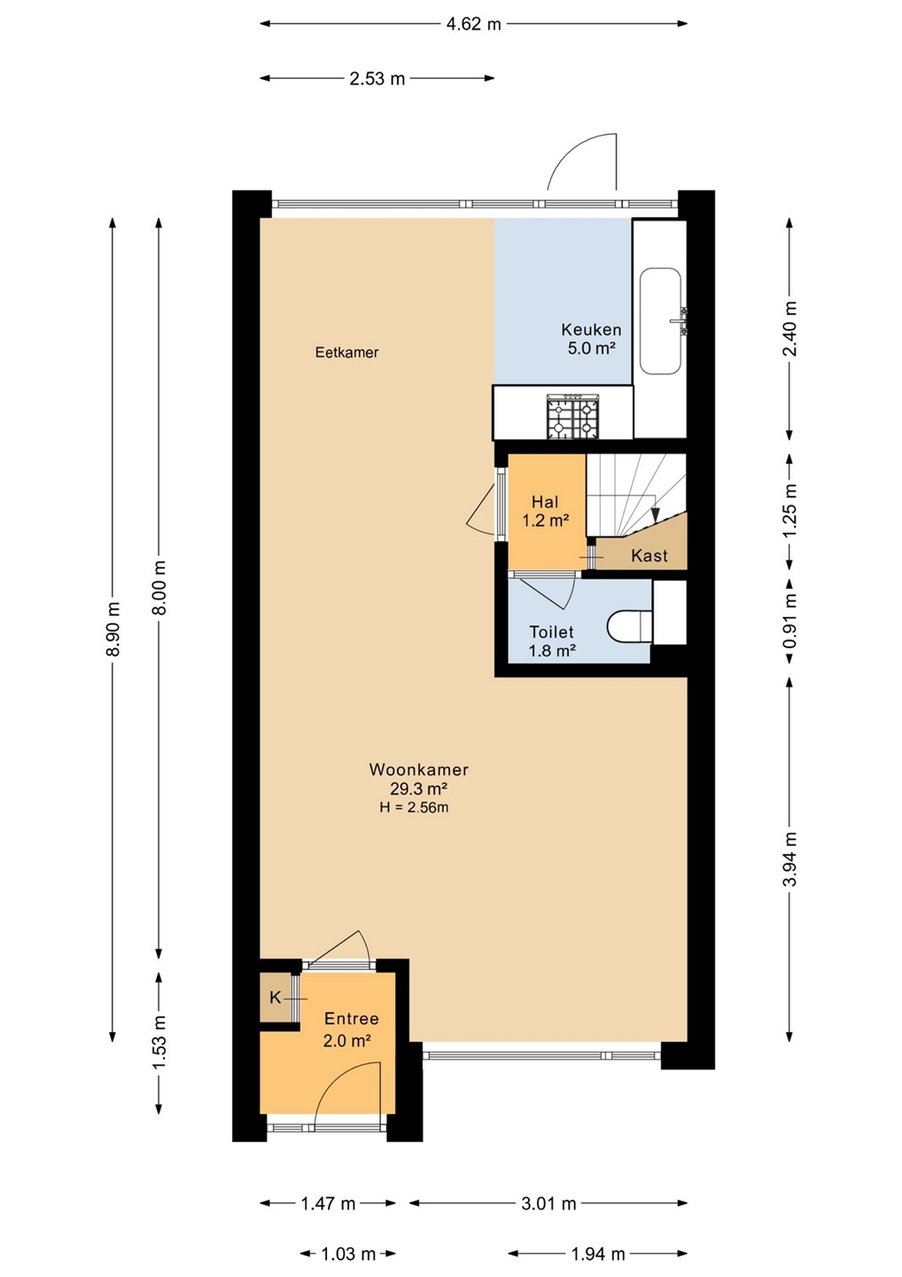
Entree/hal met meterkast en garderoberuimte. Doorloop naar de lichte woonkamer. Aan de tuinzijde de keuken met deur naar de achtertuin. Vanuit de tussenhal zijn zowel de trapopgang als het toilet bereikbaar.

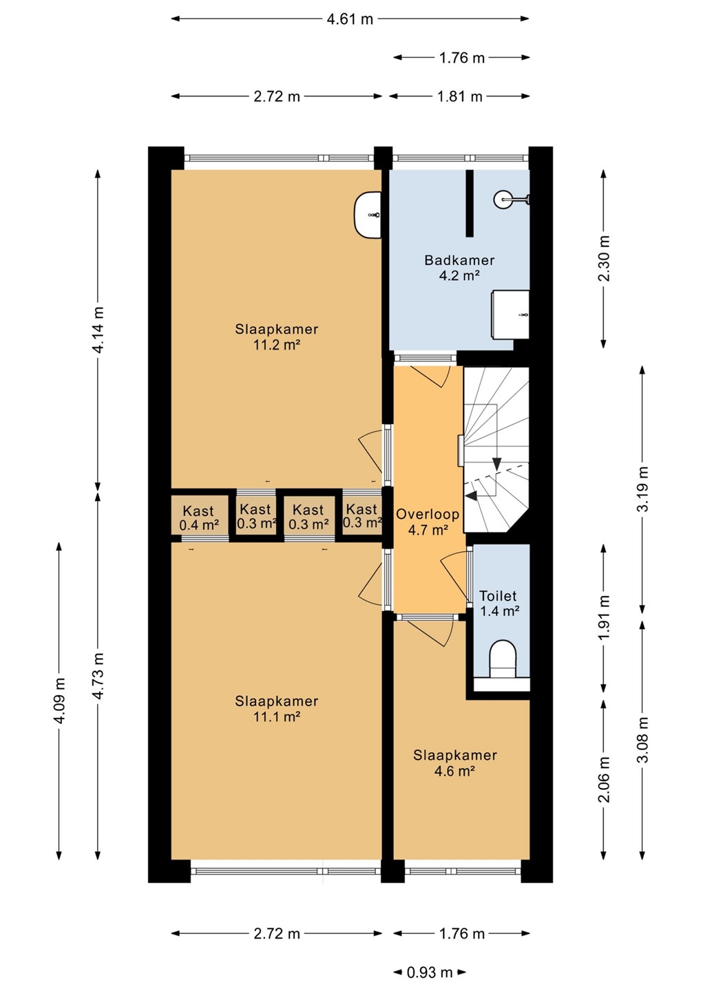
Eerste verdieping
Overloop met drie slaapkamers en de badkamer met douche en wastafel. Extra praktisch: een tweede toilet op deze verdieping.

Tweede verdieping
Vaste trap naar de zolderverdieping met overloop/berging en vierde slaapkamer. Een volwaardige extra verdieping die je naar wens kunt inrichten.

Buiten
Een verzorgde voortuin en een fijne achtertuin met achterom. Handig voor (bak)fiets, tuinspullen en spelende kids.

Garagebox (optioneel)
Om de hoek gelegen en uitstekend bereikbaar. De garagebox wordt separaat aangeboden; deze kan optioneel bij de woning worden aangekocht. Ideaal voor auto/motor, hobby of extra opslag.

Goed om te weten
• Woonoppervlak: ca. 102 m²
• Perceel: ca. 144 m²
• Bouwjaar: 1970
• Energielabel C – met modernisering relatief eenvoudig te verbeteren
• Verwarming/warm water: HR-combiketel
• Mijnbouwschade en SNN subsidie nog (gedeeltelijk) te claimen
• Garagebox: separaat te koop; niet inbegrepen in de vraagprijs
• Aanvaarding: in overleg, kan snel
• Notariskeuze: Notariaat de Poel Hoogezand

Locatie
Prettig wonen met alles binnen handbereik. Grenzend aan het Gorechtpark en maar een kwartiertje fietsen naar de jachthaven, horeca en strand aan het Zuidlaardermeer. Supermarkt, basisscholen, sportvoorzieningen en OV vind je in de directe omgeving; met de auto zit je zo op de A7 richting Groningen.

Benieuwd?
Bekijk de foto’s en plattegronden voor een eerste indruk (en check ook de eigen website, via de QR code in de brochure!), maar vooral: kom het licht, de ruimte én de potentie zelf ervaren. We plannen graag een bezichtiging voor je in!

Kaart

Kenmerken

Overdracht

Referentienummer
01831
Vraagprijs
€ 225.000,- k.k.
Status
Verkocht onder voorbehoud
Aanvaarding
In overleg
Aangeboden sinds
Maandag 6 oktober 2025
Laatste wijziging
Dinsdag 28 oktober 2025

Bouw

Type object
Woonhuis, eengezinswoning, tussenwoning
Soort bouw
Bestaande bouw
Bouwperiode
1970
Type dak
Zadeldak

Oppervlaktes en inhoud

Perceeloppervlakte
144 m²
Woonoppervlakte
102 m²
Inhoud
354 m³
Oppervlakte externe bergruimte
8 m²

Indeling

Aantal bouwlagen
3
Aantal kamers
5 (waarvan 4 slaapkamers)
Aantal badkamers
1 (en 2 aparte toiletten)

Locatie

Ligging
Dichtbij openbaar vervoer
In woonwijk
Nabij school
Nabij snelweg

Tuin

Type
Achtertuin
Hoofdtuin
Ja
Oriëntering
Oosten
Heeft een achterom
Ja
Staat
Normaal
Tuin 2 - Type
Voortuin
Tuin 2 - Oriëntering
West
Tuin 2 - Staat
Normaal

Energieverbruik

Energielabel
C

CV ketel

CV ketel
Nefit Topline
Warmtebron
Gas
Bouwjaar
2015
Combiketel
Ja
Eigendom
Eigendom

Uitrusting

Warm water
CV-ketel
Verwarmingssysteem
Centrale verwarming
Tuin aanwezig
Ja
Heeft schuur/berging
Ja

Kadastrale gegevens

Kadastrale aanduiding
Hoogezand F 3141
Perceeloppervlakte
144 m²
Eigendomsituatie
Eigen grond

Brochure(s) en overige bijlagen

Brochure automatisch - Paris - Van Limburg Stirumlaan 51 - Hoogezand.pdf Download